Fuentes del Pedregal Casas en Condominio en Preventa

Fuentes del Pedregal, Tlalpan, Ciudad de México

  • $18,500,000 MXN En Venta
  • $18,500,000 MXN En Venta
  • 3 Recámaras
  • 3 Baños
  • 1 Medios baños
  • 310 m² de construcción
  • 130 m² de terreno
  • 4 Estacionamientos
Ver Tour Virtual

Detalles

  • Tipo: Casa en condominio
  • ID: EB-UL9554
  • Antigüedad: En construcción
  • Recámaras: 3 recámaras
  • Baños: 3
  • Medios baños: 1
  • Pisos: 3
  • Asesor: Ignacio González

Descripción

Fuentes del Pedregal con ubicación facil de acceso a periférico, cerca de hospitales, colegios, parques y centros comerciales.

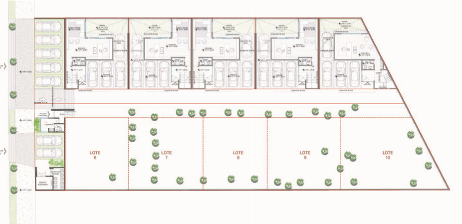
10 residencias en Preventa a partir de 300 m2

3 recámaras con baño
Medio baño de visitas
Family room
Terraza
Salón de juegos
Cuarto de servicio con baño
Area de lavado
4 estacionamientos techados
Jardín
Roof garden opcional
Estacionamiento de visitas
Seguridad 24/7

Acabados:
Pisos en madera de roble.
Terrazas con pisos de mármol Santo Tomás.
Cocinas con cubierta de cuarzo modelo Vulcano
Cancelería línea español negro mate de 3 pulgadas.
Carpintería en madera de encino americano.
Baños en mármol Santo Tomás pulido.
Cristal templado en baños.
IIuminación led.
Altura de entre piso de 2.60 mts.
Arroyo vehícular con concreto ecologico100% permeable

Equipamiento;
Cisterna de recuperación de agua pluvial para riego y lavado de autos
Preparación para carga de autos eléctricos.
Parrilla, horno, campana.
Interfón

Formas de pago:
40% de enganche
40% abono a capital en 12 pagos mensuales
20% a la firma de la escritura en el mes 13
Abiertos a escuchar propuestas

Precios desde $18,300,000 hasta $18,900,000

Amenidades

  • Cisterna
  • Estacionamiento techado
  • Jardín
  • Roof garden
  • Terraza
  • Cocina equipada
  • Cuarto de servicio
  • Estudio
  • Seguridad 24 horas
  • Mascotas permitidas
Ignacio González

Ignacio González

EB-UL9554
Imprimir propiedad

Ubicación

Fuentes del Pedregal, Tlalpan, Ciudad de México

Propiedades destacadas